Esta propiedad forma parte de EDIFICI AJUSTANTS 7.
Ver más información sobre esta promoción y de cada una de sus propiedades
Excelente piso en planta baja con 1 dormitorio y terraza de 6 m² en venta en una exclusiva promoción de obra nueva en Encamp, Andorra
Características principales del piso
- Terraza
- Ascensor
- Luz natural
- Vistas
- Triple acristalamiento
- Sistema de domótica
- Obra nueva
- Lavadero
- Exterior
- Cocina equipada
- Cocina abierta
- Cerca del transporte público
- Cerca de los colegios internacionales
- Calefacción
- Armarios empotrados
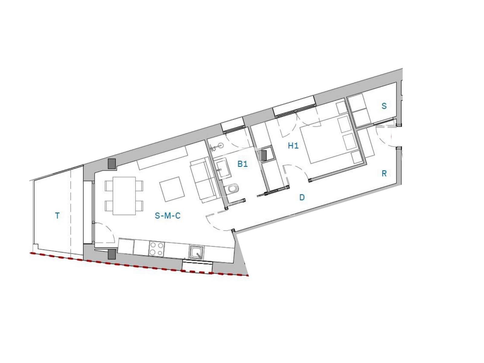
- Plano 61m²
Lo que tienes que saber de este piso en venta
Lucas Fox presenta la promoción de obra nueva Edifici Ajustant 7, un exclusivo complejo residencial con pisos en venta en Els Cortals d'Encamp, en un entorno natural privilegiado en la montaña andorrana.
Este piso de 61 m² se sitúa en la planta baja del edificio. Goza de un diseño que aprovecha al máximo el espacio y presenta una distribución diáfana que recibe abundante entrada de luz natural, con agradables vistas al entorno circundante. La zona de día alberga un amplio salón-comedor con la cocina de planta abierta y con salida a la terraza de 6 m². La zona de noche ofrece un dormitorio y un baño.
La vivienda goza de grandes calidades y acabados, como suelos cerámicos de alta resistencia, puerta de acceso de seguridad de tres puntos y antipalanca, ventanas oscilobatientes, portero electrónico e iluminación empotrada.
La cocina viene totalmente equipada con muebles altos y bajos de calidad, encimera porcelánica, fregadero de acero inoxidable, grifería monomando cromada y electrodomésticos: placa vitrocerámica, campana extractora con filtros y horno. El baño también viene con equipamiento de calidad y con un diseño moderno, como inodoro suspendido, ducha termostática con efecto lluvia y espejo antivapor y retroiluminado.
Para un confort total, se incluye carpintería exterior de PVC con triple acristalamiento y cámara de aire, calefacción por suelo radiante y aerotermia para la producción del agua caliente sanitaria y de la calefacción. Además, la promoción ofrece trasteros y plazas de garaje en las plantas sótano y baja del edificio.
Póngase en contacto para más información sobre esta exclusiva promoción de obra nueva.
Distribución del piso
- Salón-comedor
- Cocina abierta
- Dormitorio
- Baño
- Terraza
Ubicación y localización de este piso en Encamp
Esta promoción se encuentra en la zona de Els Cortals d'Encamp, en un entorno natural privilegiado, a menos de diez minutos del centro de Encamp y con excelentes vistas a las montañas del valle andorrano.
Els Cortals es una zona residencial tranquila, pero próxima a todos los servicios necesarios. Es ideal para los amantes de la naturaleza y los deportes al aire libre, ya que cuenta con acceso directo a rutas de senderismo y espacios para disfrutar de actividades al aire libre, así como áreas de picnic y zonas recreativas disponibles durante los meses de verano.
En cuanto a las comunicaciones, la carretera CS-220 conecta la zona con el núcleo urbano de Encamp, donde se encuentran comercios, restaurantes, centros educativos y servicios básicos. Desde allí, el Funicamp ofrece acceso directo al dominio esquiable de Grandvalira.
Certificado energético del inmueble
Calificación energética : En tramite
Inmuebles similares Encamp
¿No es exactamente lo que busca?





















































































