Villa de nueva construcción en Colònia de Sant Pere con 4 dormitorios, piscina en L, rooftop con vistas al mar y 2 plazas de parking. Diseño moderno, aerotermia y Smart Home en entorno costero exclusivo.
Características principales de la casa / villa
- Piscina
- Jardín
- Luz natural
- Aparcamiento
- Vistas
- Vista panorámica
- Ventanas de doble acristalamiento
- Placas solares
- Obra nueva
- Exterior
- Cocina equipada
- Cocina abierta
- Calefacción
- Balcón
- Armarios empotrados
- Aire acondicionado
- Plano 299m²
- Superficie construida 299m²
Lo que tienes que saber de esta casa / villa en venta
En Colònia de Sant Pere, uno de los pueblos costeros más auténticos y tranquilos del noreste de Mallorca, se está desarrollando esta excepcional villa de diseño contemporáneo que combina arquitectura moderna y estilo de vida mediterráneo.
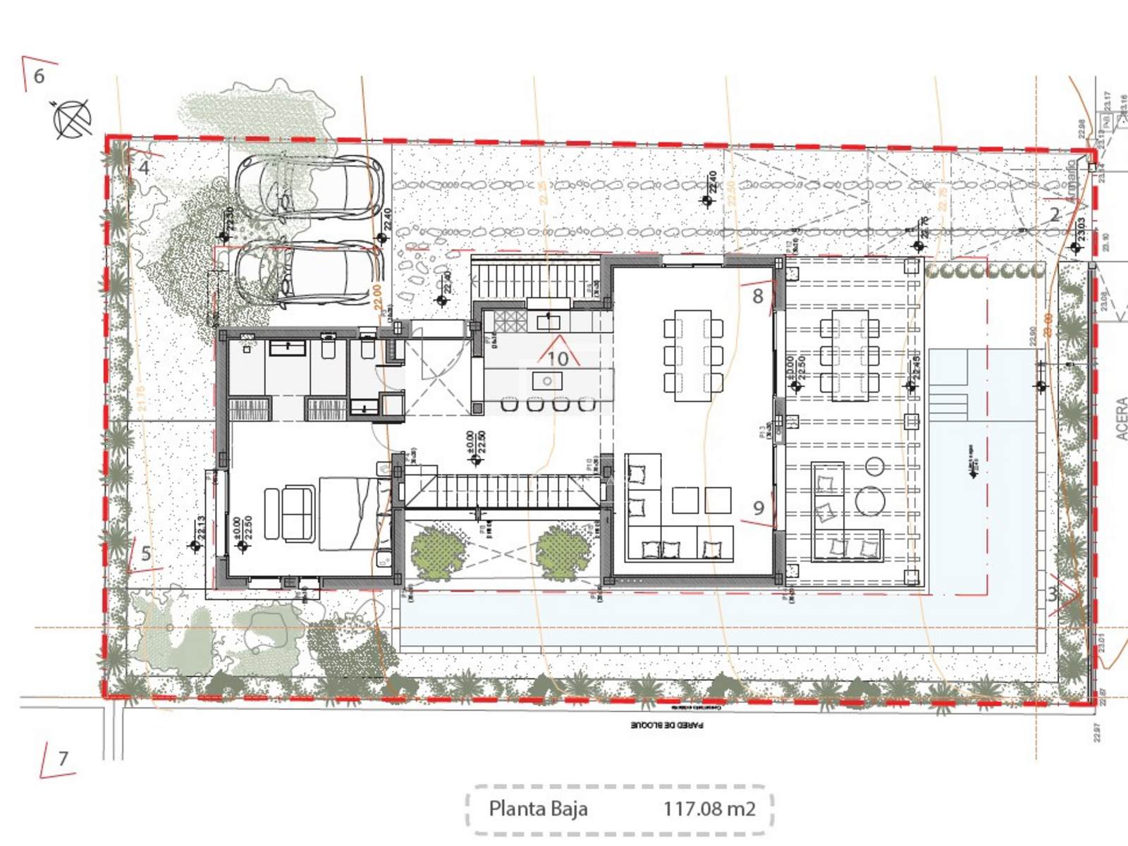
La vivienda unifamiliar independiente se sitúa sobre una parcela de aproximadamente 402 m² y destaca por su arquitectura limpia, grandes ventanales y una piscina en forma de L que abraza la vivienda, creando una transición fluida entre interior y exterior.
La superficie construida total es de aproximadamente 298 m², con 217 m² de superficie habitable. Dispone de cuatro dormitorios y tres baños, dos de ellos en suite, además de amplias zonas de salón y comedor con cocina abierta de diseño totalmente equipada con sistema Bora.
En la planta sótano, una sala polivalente y espacios técnicos complementan la funcionalidad de la vivienda.
Uno de los grandes atractivos es la amplia terraza en la azotea con vistas al mar y al impresionante paisaje montañoso. Existe la posibilidad de instalar un jacuzzi y una pequeña cocina exterior, convirtiendo este espacio en una auténtica zona wellness y social para disfrutar del clima mediterráneo durante todo el año.
Los materiales y equipamientos son de alta gama: suelos de piedra natural, superficies de microcemento, carpintería a medida, grandes ventanales con protección solar y barandillas de vidrio que realzan la arquitectura contemporánea.
En cuanto a tecnología y eficiencia energética, la villa incorpora sistema aerotérmico con bomba de calor, suelo radiante, aire acondicionado central Mitsubishi, sistema domótico KNX Smart Home y punto de carga para vehículo eléctrico.
Una propiedad ideal tanto como residencia principal como segunda vivienda en una de las zonas costeras con mayor encanto y proyección del noreste de Mallorca.
Extras
-
Planta principal
-
Recibidor
-
Amplio salón-comedor
-
Cocina abierta de diseño
-
1 dormitorio
-
1 baño
-
Aseo de invitados
-
Acceso directo a terraza y piscina
-
-
Planta superior
-
3 dormitorios
-
2 baños (2 en suite)
-
-
Sótano
-
Sala polivalente
-
Cuartos técnicos y de servicio
-
-
Azotea
-
Gran terraza con vistas al mar y montaña
-
Posibilidad de jacuzzi y cocina exterior
-
Distribución de la casa / villa
-
298 m² construidos
-
217 m² superficie habitable
-
Parcela de 402 m²
-
4 dormitorios
-
3 baños (2 en suite)
-
Aseo de invitados
-
Piscina en forma de L
-
Terraza rooftop con vistas al mar
-
2 plazas de parking
-
Cocina de diseño con sistema Bora
-
Suelo radiante
-
Aire acondicionado central
-
Sistema aerotermia (bomba de calor)
-
Domótica KNX Smart Home
-
Punto de carga para coche eléctrico
-
Suelos de piedra natural
-
Microcemento
-
Grandes ventanales con protección solar
Ubicación y localización de esta casa / villa en Noreste de Mallorca, Islas Baleares
Colònia de Sant Pere es uno de los enclaves más auténticos del noreste de Mallorca. Frente al mar y al pie de la Sierra de Llevant, combina tranquilidad, naturaleza y esencia mediterránea. Su paseo marítimo, pequeñas calas, puerto deportivo y restaurantes junto al mar crean un entorno relajado y exclusivo, lejos del turismo masivo.
Un lugar perfecto para quienes buscan privacidad, mar y calidad de vida en un entorno natural privilegiado.
Certificado energético del inmueble
Consumo de energía A : 16.33kWh/m²/año
Emisiones A : 5.13kg CO₂/m²/año
- 2
- 3
- 4
- 5
- 6
- 7
- 8
- 9
- 10
- 11
- 12
- 13
- 14
- 15
- 16
- 17
- 18
- 19
- 20
- 21
- 22
- 23
- 24
- 25
- 26
- 27
- 28
- 29
- 30
- 31
- 32
- 33
- 34
- 35
- 36
- 37
- 38
- 39
- 40
- 41
- 42
- 43
- 44
- 45
- 46
- 47
- 48
- 49
- 50
- 51
- 52
- 53
- 54
- 55
Inmuebles similares Mallorca
¿No es exactamente lo que busca?

























